Добро пожаловать на http://vipplan.ru

Випплан Ачинск - это тысячи проектов домов в нашем каталоге!

Вы всегда сможете найти для себя проект дома вашей мечты! Даже если этого не случилось, мы готовы в любую минуту предложить проект индивидуального дома.

Забыли пароль?
Вы еще не регистрировались?

Перейдите по ссылке ниже на страницу регистрации.

Регистрация...

Внимание!!!

В проектную документацию могут быть внесены изменения любой сложности, в соответствии в Вашими пожеланиями!

Полезные статьи

Выбор проекта дома (площадь, этажность - 1 или 2 этажа)

Для того что бы выбрать проект дома, предварительно необходимо определиться, какой будет площадь будущего дома (решение зависит от количества человек, планирующих постоянно в нем проживать), количество спален, санузлов и ванных комнат, компоновка дома, одноэтажный, масардный или двухэтажный дом (зависит от площади участка и предпочтений будущих хозяев) ...

Плиты перекрытий

Железобетонные плиты очень широко используются в строительстве. При помощи них возводят как промышленные объекты так жилые. Железобетонные плиты перекрытия являются главной частью любого строительного объекта вне зависимости от этажности....

Проекты домов и коттеджей > Каталог проектов домов > Двухэтажный дом с зимним садом и гостевым флигелем Vg3297

Двухэтажный дом с зимним садом и гостевым флигелем Vg3297

Двухэтажный дом с зимним садом и гостевым флигелем
Зарегистрируйтесь

Проект № Vg3297


Техническое описание
Общая площадь: 449.23 м2
Жилая площадь: 204.41 м2
Высота здания: 9.74 м
Размеры дома: 45.88м×16.11м
Кол-во комнат: 8
Цокольный этаж: нет
Гараж: нет
Мансарда: нет

Kонструкция
Фундамент: ленточный
Перекрытия: монолитные
Материал стен: material_mon

АР+КР - 100 000 (Со скидкой 20%)
Двухэтажный дом с размерами здания 48,88 х 16,11 м. Фундамент – ленточный монолитный ж/б. Наружные стены – газобетонный блок с утеплением минеральной ватой отделкой облицовочным кирпичом и планкеном. Внутренние стены – газобетонный блок. Перегородки – газобетонный блок. Пол 1 этажа - пол по грунту, межэтажное и чердачное перекрытия - монолитные ж/б плиты. Кровля - фальцевая. Окна — алюминиевые.
Генплан застройки участка / Паспорт проекта 7000 руб / 10000 руб
Инженерный раздел (полный) 224500 руб
Смета на строительство 112250 руб
Теплотехнический расчет материалов стен Бесплатно
Стоимость проекта со незначительнми изменениями 113750 руб
Стоимость проекта со средними изменениями* 147500 руб
Стоимость проекта со значительными изменениями** 156400 руб

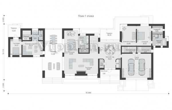
План первого этажа


Зимний сад - 38,31 м2
С/у - 3,09 м2
Гардероб - 3,34 м2
Гостиная - 59,47 м2
Кухня - 10,80 м2
Кладовая - 3,24 м2
Столовая - 26,80 м2
Комната - 22,80 м2
Спальня - 23,37 м2
Гардероб - 6,90 м2
Ванная - 10,45 м2
С/у - 1,60 м2
Гараж - 58,39 м2
Постирочная - 7,06 м2
Котельная - 6,97 м2
Гостевая - 14,72 м2
Комната - 23,14 м2
Парная - 6,72 м2
С/у - 3,36 м2
Тамбур - 5,04 м2

Двухэтажный дом с зимним садом и гостевым флигелем

Двухэтажный дом с зимним садом и гостевым флигелем

План второго этажа


Ванная - 9,44 м2
Гардероб - 5,35 м2
Гардероб - 5,35 м2
Игровая - 32,99 м2
Коридор - 8,54 м2
С/у - 3,51 м2
Спальня - 13,96 м2
Спальня - 13,96 м2
Терраса - 68,55 (20,56) м2
Двухэтажный дом с зимним садом и гостевым флигелем Двухэтажный дом с зимним садом и гостевым флигелем Двухэтажный дом с зимним садом и гостевым флигелем Двухэтажный дом с зимним садом и гостевым флигелем
Внесение изменений и привязка к участку строительства

В любой из проектов от компании VIPplan - Ачинск по вашему желанию могут быть внесены изменения в материалы стен, материалы наружной отделки дома, а также будет произведена адаптация проекта под конкретный регион строительства (с учетом грунтов региона, геологических особенностей вашего участка и местных климатических условий) - БЕСПЛАТНО !!! (кроме проектов со скидкой и проектов наших партнеров).

Любой из проектов, размещенных на сайте achinsk.vipplan.ru мы можем выполнить из требуемых вам строительных материалов: ячеистый бетон (газобетон, пеноблок), керамоблок, кирпич, шлакоблок, бетонный блок, дерево (брус, клееный брус), каркасная технология (деревянный каркас, металлокаркас (ЛСТК)).

Фасад дома и его наружную отделку так же возможно выполнить с применением различных облицовочных материалов: структурной штукатурки, (с утеплителем и без), сайдингом (пластиковый или металлосайдинг), фиброплитами, кирпича.

 
6 Избранные
проекты

Доставка проектов по России: Москва (Московская область), Санкт-Петербург (Ленинградская область), Краснодар, Ростов-на-Дону, Ставрополь, Сочи, Волгоград, Новосибирск, Белгород, Брянск, Воронеж, Саратов, Хабаровск, Астрахань, Нальчик, Владикавказ, Екатеринбург, Тюмень, Самара, Нижний Новгород, Казань, Пермь, Уфа, Челябинск, Красноярск, Ханты-Мансийск, Иркутск, Курган, Оренбург, Омск, Томск, Барнаул, Новокузнецк, Кемерово, Абакан, Чита, Якутск, Южно-Сахалинск, Петропавловск-Камчатский и страны ближнего зарубежья: Белоруссия, Украина, Казахстан