Добро пожаловать на http://vipplan.ru

Випплан Ачинск - это тысячи проектов домов в нашем каталоге!

Вы всегда сможете найти для себя проект дома вашей мечты! Даже если этого не случилось, мы готовы в любую минуту предложить проект индивидуального дома.

Забыли пароль?
Вы еще не регистрировались?

Перейдите по ссылке ниже на страницу регистрации.

Регистрация...

Внимание!!!

В проектную документацию могут быть внесены изменения любой сложности, в соответствии в Вашими пожеланиями!

Полезные статьи

Искусственный камень

Среди современных материалов, особого внимания заслуживает искусственный камень. Естественность и красота натурального камня очевидна. Но нужно реально оценивать свои возможности и присмотреться именно к искусственному камню, так как сам искуственный камень и стоимость производства работ с ним в Ачинске значительно дешевле чем натуральный....

Монолитный коттедж с несъемной опалубкой

Перед тем, как вы задумаетесь о строительстве своего коттеджа, необходимо выбрать, сами вы будете руководить строительством, нанимать разных рабочих, или будете обращаться в строительную фирму, и заключать с ними договор. Но даже к этому вопросу нужно подходить правильно, обдумав все плюсы и минусы выбора....

Проекты домов и коттеджей > Каталог проектов домов > Проект просторного двухэтажного дома Vg1360

Проект просторного двухэтажного дома Vg1360

Проект просторного двухэтажного дома
Зарегистрируйтесь

Проект № Vg1360


Техническое описание
Общая площадь: 185.39 м2
Жилая площадь: 103.93 м2
Высота здания: 9.19 м
Размеры дома: 13.34м×10.04м
Кол-во комнат: 5
Цокольный этаж: нет
Гараж: нет
Мансарда: нет

Kонструкция
Фундамент: Свайно-ростверковый
Перекрытия: Сборные ж/б плиты
Материал стен: Газобетон

Архитектурный раздел
Конструктивный раздел
АР+КР - 60 000 (Со скидкой 20%)
Индивидуальный проект двухэтажного дома с размерами здания в 13,34 x 10,04м. Наружная отделка здания - облицовочный кирпич 2х цветов. Отделка вентканалов и дымоходов - клинкерная плитка. Цоколь - отделка клинкерной плиткой. Фундамент - свайно-ростверковый (буронабивной). Ростверк - монолитный ж/б. Наружные стены: газобетонные блоки, утеплитель - минеральная вата, вент.зазор, облицовочный кирпич. Внутренние стены - из газобетонных блоков. Перегородки: - Газобетонные блоки. Перемычки монолитные и сварные из профиля проката. Пол первого этажа - пол по грунту. Межэтажное перекрытие - сборные ж/б плиты перекрытия. Чердачное перекрытие - по деревянным балкам с использованием теплоизоляционных материалов типа "URSA" в межбалочном пространстве. Крыша четырехскатная. Покрытие - гибкая черепица. Лестница деревянная, выполняется по индивидуальному заказу. Окна - металлопластиковые, выполненные по индивидуальному заказу.
Генплан застройки участка / Паспорт проекта 7000 руб / 10000 руб
Инженерный раздел (полный) 92500 руб
Смета на строительство 46250 руб
Теплотехнический расчет материалов стен Бесплатно
Стоимость проекта со незначительнми изменениями 70350 руб
Стоимость проекта со средними изменениями* 84300 руб
Стоимость проекта со значительными изменениями** 88000 руб

План первого этажа


Тамбур — 7,36 кв м
Холл — 3,44 кв м
Гостиная — 29,29 кв м
Кухня — 10,16 кв м
Кладовая — 3,78 кв м
Кабинет — 10,96 кв м
С/у — 2,92 кв м
Бойлерная — 7,39 кв м
Помещение — 18,53 кв м

Проект просторного двухэтажного дома

Проект просторного двухэтажного дома

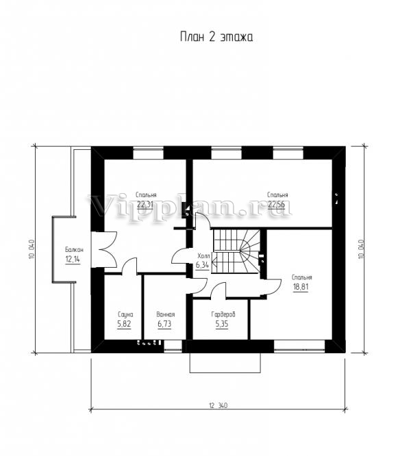
План второго этажа


Холл — 6,34 кв м
Спальня — 22,56 кв м
Спальня — 18,81 кв м
Гардероб — 5,35 кв м
Ванная — 6,73 кв м
Сауна — 5,82 кв м
Спальня — 22,31 кв м
Балкон — 12,,14 кв м
Проект просторного двухэтажного дома Проект просторного двухэтажного дома Проект просторного двухэтажного дома Проект просторного двухэтажного дома

Модификации проектов

Внесение изменений и привязка к участку строительства

В любой из проектов от компании VIPplan - Ачинск по вашему желанию могут быть внесены изменения в материалы стен, материалы наружной отделки дома, а также будет произведена адаптация проекта под конкретный регион строительства (с учетом грунтов региона, геологических особенностей вашего участка и местных климатических условий) - БЕСПЛАТНО !!! (кроме проектов со скидкой и проектов наших партнеров).

Любой из проектов, размещенных на сайте achinsk.vipplan.ru мы можем выполнить из требуемых вам строительных материалов: ячеистый бетон (газобетон, пеноблок), керамоблок, кирпич, шлакоблок, бетонный блок, дерево (брус, клееный брус), каркасная технология (деревянный каркас, металлокаркас (ЛСТК)).

Фасад дома и его наружную отделку так же возможно выполнить с применением различных облицовочных материалов: структурной штукатурки, (с утеплителем и без), сайдингом (пластиковый или металлосайдинг), фиброплитами, кирпича.

 
6 Избранные
проекты

Доставка проектов по России: Москва (Московская область), Санкт-Петербург (Ленинградская область), Краснодар, Ростов-на-Дону, Ставрополь, Сочи, Волгоград, Новосибирск, Белгород, Брянск, Воронеж, Саратов, Хабаровск, Астрахань, Нальчик, Владикавказ, Екатеринбург, Тюмень, Самара, Нижний Новгород, Казань, Пермь, Уфа, Челябинск, Красноярск, Ханты-Мансийск, Иркутск, Курган, Оренбург, Омск, Томск, Барнаул, Новокузнецк, Кемерово, Абакан, Чита, Якутск, Южно-Сахалинск, Петропавловск-Камчатский и страны ближнего зарубежья: Белоруссия, Украина, Казахстан